Te koop
Bouwgrond met project en bouwvergunning
97,500 €
Omschrijving
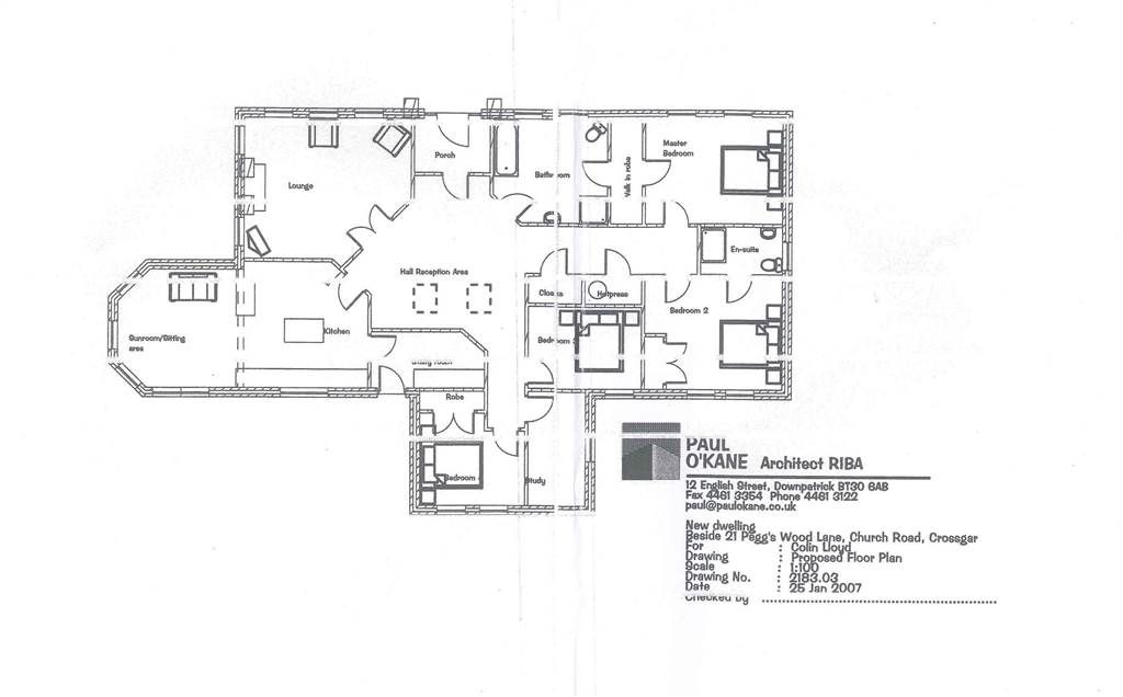
TERREIN MET VOLLEDIGE BOUWVERGUNNING VOOR EEN NIEUWE WONING VAN CA. 2000 SQFT.
Dit is een fantastische kans om een prachtig huis te bouwen op deze prachtige locatie op het platteland. Het volgroeide terrein heeft een zonnige ligging diep in het platteland van Co. Down met een scala aan wilde dieren en een prachtig uitzicht over glooiende velden, waaronder de Dromara Hills. De funderingen zijn gelegd, het gebouw is afgebouwd tot de afgewerkte vloer en bevat een garage/werkplaats onder het huis, die desgewenst ook kan worden gebruikt als een uitgebreide bijkeuken. Het pand is ontworpen om te worden voltooid in houtskeletbouw of conventionele constructie met een hoge mate van isolatie. Er is ook een mogelijkheid om een bovenverdieping in de dakholte te maken. Naast de funderingen is een verhard terrein aangelegd, zodat er tijdens de bouw machines kunnen worden geplaatst. Het terrein is toegankelijk via een gedeelde rijbaan en ligt dicht bij de plaatselijke voorzieningen en op korte afstand van Belfast en vele andere delen van de provincie.
Details Eigendom
Crossgar - County Down
niec37s15
Locatie
Eigendommen
